10/02/2026 0 Kommentare
Helle 5-Zimmer-Wohnung im Herzen von Kyritz zu vermieten
Helle 5-Zimmer-Wohnung im Herzen von Kyritz zu vermieten
# Neuigkeiten

Helle 5-Zimmer-Wohnung im Herzen von Kyritz zu vermieten
5 Zimmer in der Kyritzer Altstadt ab sofort
Wir, die Evangelische Mariengemeinde Ostprignitz, vermieten zum nächstmöglichen Zeitpunkt eine helle und freundliche, 194 m2 große Altbauwohnung.
Viel Licht, viel Platz – auf zwei Etagen
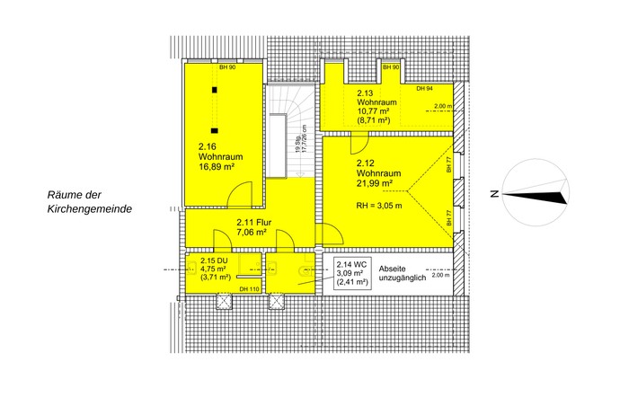
In der Wohnung verteilen sich fünf Zimmer großzügig auf zwei Stockwerke. Die Aufteilung der Zimmer erlaubt eine vielfältige Nutzung und ist besonders für Familien geeignet.
Im selben Haus, in einem separaten Gebäudeteil, befinden sich Büroräume der Evangelischen Mariengemeinde Ostprignitz.
Der Gemeindegarten kann nach Absprache mitgenutzt werden



Weitere Bilder → hier.
Auf einen Blick:
| Zimmer: | 5 auf 2 Etagen |
| Kaltmiete: | 1.300,00 € |
| Küche: | Einbauküche im EG optional |
| Bad: | 1 Bad mit Wanne im EG, Dusche/WC im OG |
| Heizung: | Gasheizung |
| Haustiere: | Nach Absprache, keine Hunde |
| Garten: | Gemeindegarten, nach Absprache Mitnutzung |
Kontakt: Bei Interesse wenden Sie sich bitte an vermietung@mariengemeinde-ostprignitz.de.
Grundrisse

Grundriss EG

Grundriss OG
Kommentare